Description
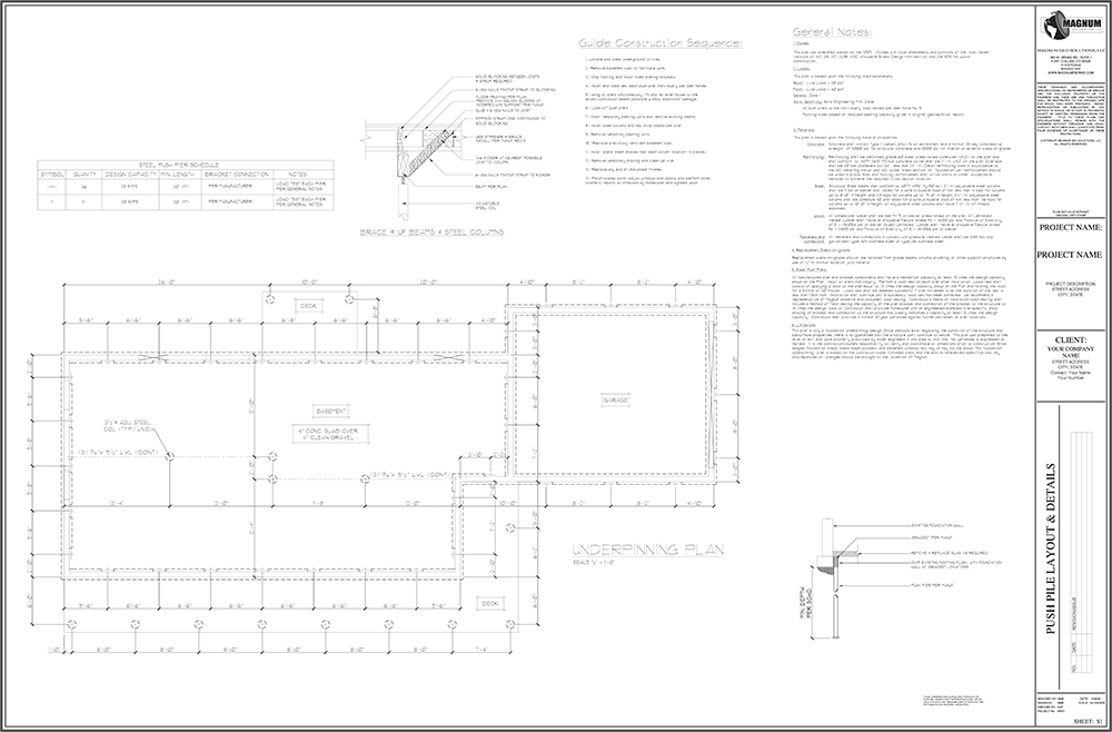
CADD files for an example a fully underpinned home foundation and deck using Magnum push piers. Push piers installed on inside of tall basement walls to counterbalance backfill pressures and augment lateral stability of foundation walls. Example push pier layout, details, installation notes, and material specifications provided.
Push pier rams and brackets use dead weight of existing structure to drive piles below problem soils. Proof test is performed on every pier and bracket. Factors of safety are achieved through redundancy, that is the use of more than one pier to support dead loads in a certain locaiton and driving and testing piers individually.
LIMITATIONS
The drawings and design(s) contained in these documents are based on a specific project, location, time, and soil profile for which they were prepared. Obviously, drawings and design requirements are highly dependent on project location, local practice, prevailing codes, and soil profile conditions. Some of the drawing examples are out of date and based on older codes and practices. These drawings and designs are examples intended to be used by design professionals for informational purposes only. Magnum Piering, Inc. makes no assertions as to the accuracy, completeness, compliance with any codes, or applicability of such information for any specific project or condition, nor do we purport the fitness of the designs shown for any intended purpose.
The Design Professional or Engineer of Record should use this information after some due diligence and edit and supplement them to suit any specific purpose. Design Professionals and Engineers are encouraged to contact Magnum Piering and Magnum Geo-Solutions with any questions about the example designs or to seek assistance with Magnum product selection and specification.
Copyright (C) 2017: The information contained in these downloadable documents is the intellectual property of Magnum Piering, Inc. and Magnum Geo-Solutions, LLC and is disclosed solely for use in developing, costing and installing a geo-structural solution using Magnum Piering products. Copying or distributing this information for any purpose, other than the intended use, without written consent of Magnum Piering, and specifically copying or distributing the information for specifying or marketing foundation products manufactured by others, is expressly forbidden.




